loading
Home
About
Projects
All
Commercial
Residential
Cultural
Educational
Health
Industrial
Interior
Planning
photography
Contact
© CNPSOFT
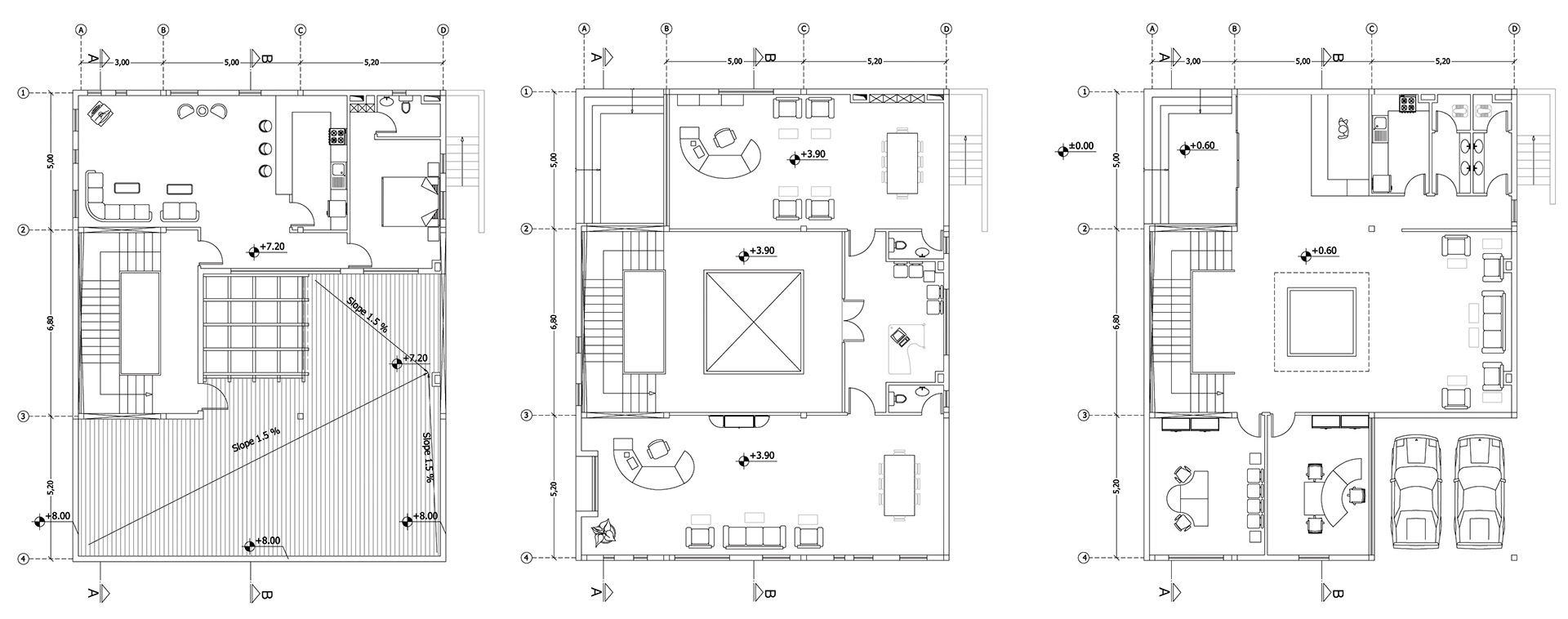
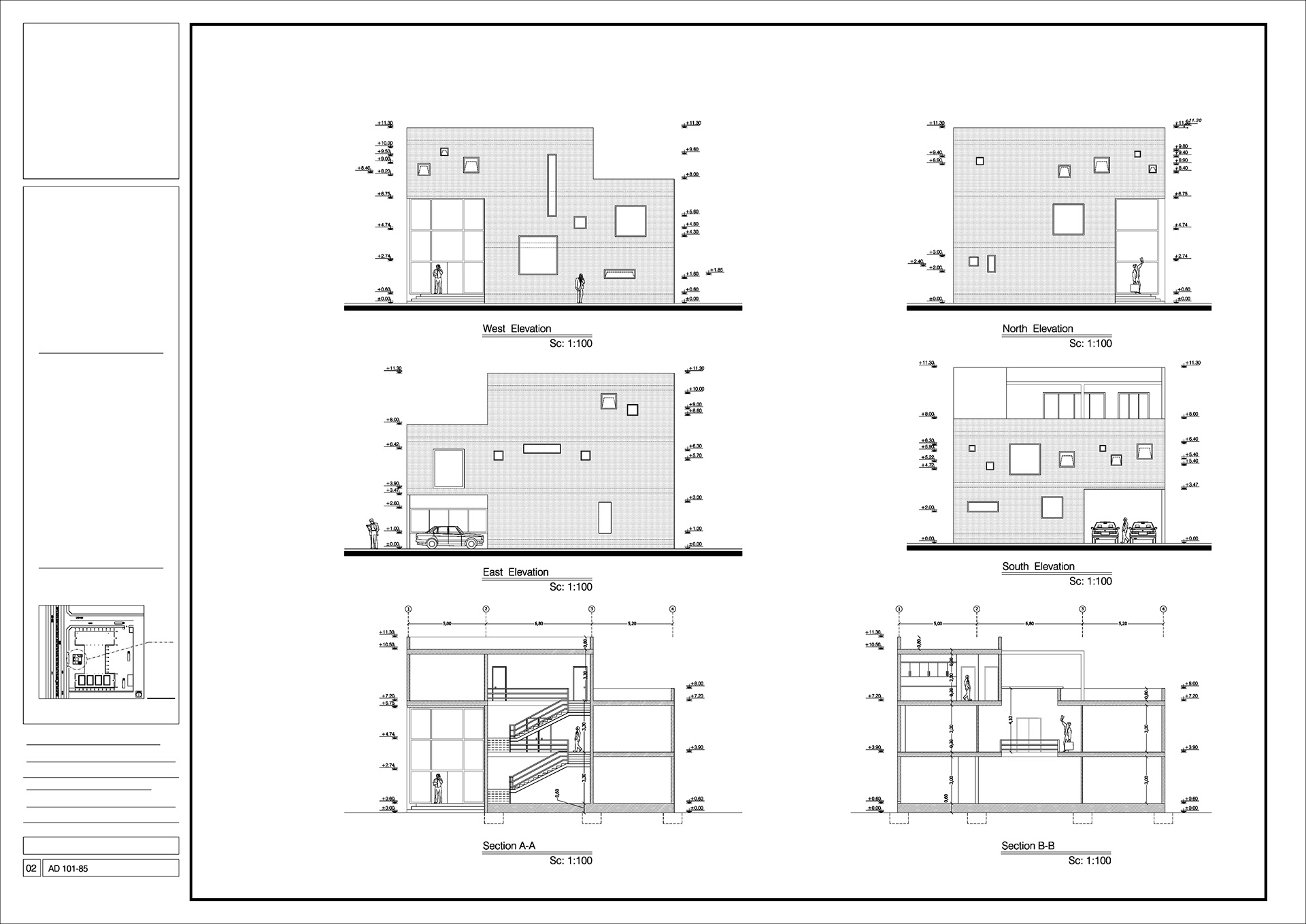
PAKRIS TEXTILE FACTORY + HEAD OFFICE
Industrial
DESIGN DATE: 2006
ARCHITECT: NIMA DIBAZAR | AŞKAN MANSURI
LOCATION: AZARSHAHR, IRAN